Гибель «Титана»

18 июня 2023 в Северо-Западной Атлантике на глубине около 3800 м погиб глубоководный аппарат «Титан» (“Titan”), упорно, хотя и абсолютно неправильно, величаемый в СМИ «батискафом» (журналисты, учите матчасть!). Вместе с ним погибли и находившиеся на борту пять человек.
В СМИ появилось множество публикаций и видео, посвященных этому событию, но большинство из них не вызывают особого доверия, и их авторы не знакомы с этой тематикой. Поэтому обратимся к надежному источнику.
4 августа 2025 года Береговая охрана США (United States Coast Guard - USCG) опубликовала результаты проведенного ею расследования обстоятельств и причин случившегося: “Report of the Marine Board of Investigation Into the Implosion of the Submersible TITAN (CG1788361) in the North Atlantic Ocean Near the Wreck Site of the RMS TITANIC Resulting in the Loss of Five Lives on June 18, 2023.”
В данной статье постараюсь кратко изложить содержание данного документа, думаю, что это заинтересует не только специалистов, но и любителей морской техники и ее истории.
Частная американская компания OceanGate Inc. (Эверетт, штат Вашингтон), основанная в 2009 году, первоначально ставила своей целью создание небольшого флота пятиместных подводных коммерческих аппаратов, которые сдавались бы в аренду организациям или частным лицам для проведения научных исследований или туризма.
Свой первый подводный обитаемый аппарат “Antipodes” (рабочая глубина погружения 305 м) компания приобрела в 2010 году. В 2010-2013 гг. аппарат выполнил около 130 погружений, при этом каждый подводный турист платил за это от $7500 до $40000. В 2018 году “Antipodes” был выставлен OceanGate на продажу.
В 2012 году между Boeing и OceanGate было заключено соглашение о проведении предварительного технико-экономического обоснования концепции подводного аппарата CYCLOPS с прочным корпусом из углепластикового композита и титана. 21 октября следующего года Боинг представил доклад о результатах проведенных работ согласно требованиям заказчика (рабочая глубина погружения до 8600 м, прочный корпус из композитных материалов).
При рабочей глубине погружения 8600 м и коэффициенте запаса прочности 1,5 толщина стенок цилиндрического прочного корпуса, выполненного из углепластикового композита, должна была составлять не менее 81,3 мм. В отчете, в частности, отмечалось, что одним из наиболее критически важных компонентов конструкции является клеевое соединение между композитным корпусом и титановыми сегментами.
Подготовка поверхности имела решающее значение, а о прочности соединения титана и углеродного волокна было известно мало. Хотя прочность соединения на сдвиг может быть менее критичной из-за сжимающей нагрузки на линии склеивания, сжимающие нагрузки на глубине будут выше, чем обычно наблюдаемые в клеевых соединениях. В отчёте подчёркивается необходимость дополнительных исследований для понимания того, как этот тип соединения ведёт себя в данных условиях и как приложенные нагрузки влияют на адгезионное соединение.

Концептуальное изображение глубоководного аппарата “Cyclops” (фирма Боинг)
В 2015 году в строй вступил «Cyclops 1» (рабочая глубина погружения 500 м), разработанный OceanGate в сотрудничестве с Университетом штата Вашингтон и фирмой «Боинг». Как «Antipodes», так и «Cyclops 1» имели стальной прочный корпус. За ними последовал подводный аппарат «Cyclops 2», позднее переименованный в «Titan».
«Antipodes»
«Cyclops 1»
Начнем с технического описания «Титана». Он был разработан OceanGate в сотрудничестве с NASA, Университетом штата Вашингтон и фирмой «Боинг» и вступил в строй в 2018 году. Стоимость проектирования, постройки и испытания аппарата составляла около 5 млн долларов.
Первоначально планировалось прочный корпус подводного аппарата строить полностью из углепластика. В 2015-2016 гг. была проведена серия испытаний моделей, выполненных в масштабе 1:3. Испытания показали ненадежность углепластиковых сферических оконечностей, поэтому было принято решение выполнить их из титана.

Места повреждений углепластиковой сферической оконечности модели «Титана» (отмечено красным). Глубина 2943 м

Одна из моделей, разрушенная в ходе испытаний
В ходе модельных испытаний максимальная достигнутая безопасная глубина погружения составила 4200 м, что на 4400 м меньше планируемой.
Изготовление углепластикового прочного корпуса велось с марта до октября 2017 года фирмой Spencer Composites. Его длина составляла 2540 мм, наружный диаметр — 1676 мм, рабочее давление — 464 кг/см², коэффициент запаса прочности — 2,25, вес — 2722 кг.
В процессе производства использовалось чередование пропитанных углеродных волокон и однонаправленных эпоксидных тканей в осевом направлении, а также мокрая круговая намотка углеродного волокна и эпоксидной смолы. Использовались углеродные волокна Grafil 37-800, эпоксидная смола Epon Resin 682 и отвердитель Lindride LS-81K. В общей сложности конструкция состояла из 480 слоёв, толщина стенки корпуса составила 127 мм. Корпус формировался на оправке из нержавеющей стали. Для защиты от воздействия морской воды корпус снаружи был покрыт 5-мм слоем полиуретана, а внутри была установлена вставка из стеклопластика, которая предотвращала конденсацию влаги, но исключала возможность наблюдения за состоянием композитной части прочного корпуса.
В оптимизированной конструкции, представленной в технико-экономическом обосновании компании Боинг, толщина корпуса из углепластика составляла 7 дюймов. Однако компания OceanGate уменьшила эту толщину для окончательного варианта «Титана» до 5 дюймов, при этом ключевым отличием стало исключение слоев, ориентированных под углом 45˚, из окончательной схемы укладки углепластика. В предварительном отчете Боинга указывалось, что таблицы допустимых деформаций не поддерживают схемы укладки без слоев, ориентированных под углом 45˚. Несмотря на это, в окончательной конструкции «Титана» использовались только кольцевые и осевые слои углепластика, однако никто из участников проекта, опрошенных MBI, не смог объяснить, почему были исключены слои, ориентированные под углом 45˚.


Намотка углепластикового волокна на оправку
Удаление оправки
В 2021 году в связи с появлением усталостных трещин в композитной части прочного корпуса она была заменена.
После замены композитной части прочного корпуса в марте 2021 года были проведены его испытания в глубоководной испытательной установке в штате Мериленд (Deep Ocean Test Facility, Bethesda, Maryland). Максимальная достигнутая глубина на испытаниях — 4200 м.
«Титан» во время испытаний
Титановые части корпуса (титан марки Grade 3, предел прочности на растяжение около 480 МПа) произведены фирмой Titanium Fabrication Corp. Носовые и кормовые титановые полусферы имели диаметр 1524 мм и толщину 83 мм. Концевые части композитного прочного корпуса приклеивались к титановым кольцам, к которым на болтах крепятся полусферы. В носовой полусфере весом 1680 кг, которая могла откидываться направо для посадки экипажа и погрузки оборудования, имелось отверстие для иллюминатора диаметром 318 мм.
Носовая полусфера

Титановое кольцо с нанесенным эпоксидным клеем устанавливается на композитную часть прочного корпуса
Для склейки использовался двухкомпонентный эпоксидный клей HYSOL® EA 9394, известный также под названием LOCTITE® EA 9394 AERO. Этот клей наносился на торцы корпуса из углеродного волокна и на С-образные канавки в носовом и кормовом титановых кольцах. С-образный профиль имел размеры приблизительно 35 мм в глубину и 127 мм в ширину с небольшим сужением на глубине 122 мм в выемке.

С-образная канавка в титановом кольце
Откидываемая носовая полусфера
К кормовой полусфере крепились четыре так называемых «penetrator», служащих для герметичного ввода электрических кабелей, трубопроводов гидравлики и воздуха высокого давления.

Один из «пенетрейторов»

Инспекция посадочного места под акриловый иллюминатор в носовой полусфере
Иллюминатор из акрилового стекла (известного также под названиями оргстекло или плексиглас) диаметром 380 мм и толщиной 180 мм был изготовлен фирмой Hydrospace Group Inc., его стоимость составила 33 450 долларов. Иллюминатор предполагалось изготовить согласно стандарту ASME (The American Society of Mechanical Engineers) PVHO-1 (Safety Standard for Pressure Vessels for Human Occupancy), однако по требованию руководства OceanGate его форма была изменена: внутренняя поверхность была выполнена не сферической, а плоской «для улучшения видимости». Так как нестандартная форма стекла для сертифицирования требует длительных испытаний (до 10 лет), то OceanGate от этого отказалась. Поэтому изготовитель гарантировал его прочность только для глубины до 650 м.
В 2020 году взамен поврежденного при падении стекла фирмой Heinz Fritz GmbH было изготовлено новое аналогичной конструкции. Для него расчетное предельное давление соответствовало глубине 4200 м.

Стекло иллюминатора по стандарту ASME PVHO-1 (внизу) и фактический (вверху)

Стекло иллюминатора «Титана»
Иллюминатор в сборе
«Зоны риска» прочного корпуса
К прочному корпусу «Титана» крепилось шасси. Оно предназначалось как для установки аппарата на горизонтальной поверхности, так и для крепления камер, осветительных приборов, систем сканирования и других компонентов, которые можно было сбросить для уменьшения веса в экстренной ситуации.
К кормовой части прочного корпуса был пристыкован проницаемый отсек конической формы длиной около 1,5 м, в котором размещались две аккумуляторные батареи, баллон воздуха высокого давления, различное оборудование, включая систему телеметрии, и блоки плавучести из синтетической пены.

Кормовой отсек (обтекатель снят)
Балластная система предназначалась для дифферентовки, погружения и всплытия аппарата. Она состояла из комбинации балластной цистерны и сбрасываемых грузов. В верхней части корпуса был установлен открытый снизу эластичный «мешок», служивший балластной цистерной. Вместе с системой воздуха высокого давления (ВВД) он обеспечивал достижение желаемого подводного состояния с положительной, нейтральной или отрицательной плавучестью. Клапанами продувки и вентиляции балластного «мешка» управлял компьютер, обеспечивающий желаемый уровень плавучести. Запас ВВД под давлением около 700 кг/см² хранился в 40-литровом баллоне.

Балластный «мешок»
Размещение баллона ВВД (указан желтой стрелкой)
Пульт управления балластным мешком
Перед посадкой на «Титан» все пассажиры и их снаряжение взвешивались. Исходя из общего веса экипажа и аппарата, к посадочному шасси добавлялись свинцовые грузы для достижения оптимальной плавучести перед началом погружения. Кроме того, имелись дифферентовочные грузы в виде отрезков стальных труб общим весом 180 кг, которые можно было сбрасывать по отдельности с помощью электроприводов или аварийного гидропривода с ручным насосом. В аварийной ситуации для быстрого облегчения «Титана» можно было сбросить шасси вместе со всеми прикрепленными к нему грузами.

Дифферентовочные грузы

Пульт управления гидравликой сброса грузов и шасси
Для аварийного всплытия служили дополнительные грузы, соединенные с «Титаном» через быстрорастворимый анод. Анод растворялся в течение 24 часов, и грузы сбрасывались.
Для поддержания необходимого газового состава воздуха имелись один основной и четыре резервных кислородных баллона (давление 176 кг/см²), которые размещались внутри прочного корпуса и обеспечивали до 96 часов жизнеобеспечения для пяти членов экипажа. Подача кислорода регулировалась вручную с помощью расходомера из расчета 0,5 литра в минуту на человека. Для контроля за содержанием кислорода использовались электронные кислородные датчики, установленные внутри аппарата.
Уровень CO² постоянно контролировался системой управления «Титаном», а на случай отказа системы управления была предусмотрена резервная система аварийного мониторинга. Для удаления CO² служил скруббер, заполненный абсорбентом Sofnolime®. Воздух через него прокачивался электровентилятором. Аварийная очистка воздуха от CO² была выполнена с помощью одеял из гидроксида лития (LiOH).
Для вертикального и горизонтального перемещения служила пропульсивная установка из четырех (двух вертикальных и двух горизонтальных) гребных установок типа Innerspace 1002HL Hexscreen Electric Thrusters с электроприводом мощностью по 12 л.с. Скорость аппарата (горизонтальная) достигала трех узлов.
Одна из пропульсивных установок (thruster)
Гребные электродвигатели питались от двух внешних литий-полимерных батарей Ictineu Li-Po® с напряжением 150 В, рассчитанных на полную глубину погружения. Одна батарея питала вертикальные двигатели, а другая — горизонтальные, обеспечивая их работу на протяжении 27 часов.

Аккумуляторная батарея Ictineu Li-Po®
Внутренний аккумуляторный блок 24 В служил для питания вспомогательных систем. Он состоял из четырех герметичных свинцово-кислотных аккумуляторных батарей по 6 В.
Электронное оборудование состояло из:
- INS/USBL (инерциальная навигационная система/ультразвуковая система позиционирования) фирмы Advanced Navigation
- Сонар Teledyne BlueView 2D sonar (поле зрения 90 градусов, дальность обнаружения целей до 300 м)
- Доплеровский лаг Teledyne Doppler Velocity Log
- Подводный лазерный сканер 2G Robotics Dynamic Underwater Laser Scanner (ULS-500 PRO)
- Забортных фото- и видеокамер, внутренней видеокамеры
- Real Time Hull Health Monitoring (RTM) — системы постоянного контроля состояния корпуса
- Компьютеров управления и контроля
- Четырех подводных LED светильников (40 000 люменов)
- Система голосовой звукоподводной связи отсутствовала, связь с поверхностью могла поддерживаться только с помощью коротких сообщений. Максимальный размер текстового сообщения составлял 64 байта, что обычно эквивалентно 64 символам или примерно 10–13 словам.
В ходе подводных работ компания OceanGate использовала модемы акустической телеметрии разных производителей для систем связи и слежения за судами. Приёмопередатчик с ультракороткой базой (USBL), установленный на судне поддержки подводного аппарата, использовал акустические сигналы для определения расстояний и пеленга до целей слежения. USBL-приёмопередатчик измерял время, прошедшее с момента получения сигнала транспондером, а затем преобразовывал это время в расстояние. Благодаря использованию нескольких преобразователей, приёмопередатчик судна поддержки мог рассчитывать угол до любого установленного транспондера.
Предполагалось установить один модем на «Титане», а второй модем планировалось разместить на морском дне рядом с местом крушения «Титаника» в качестве акустического маяка для будущих погружений.
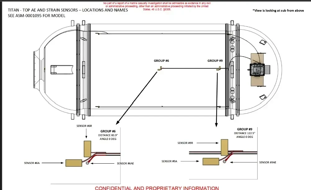
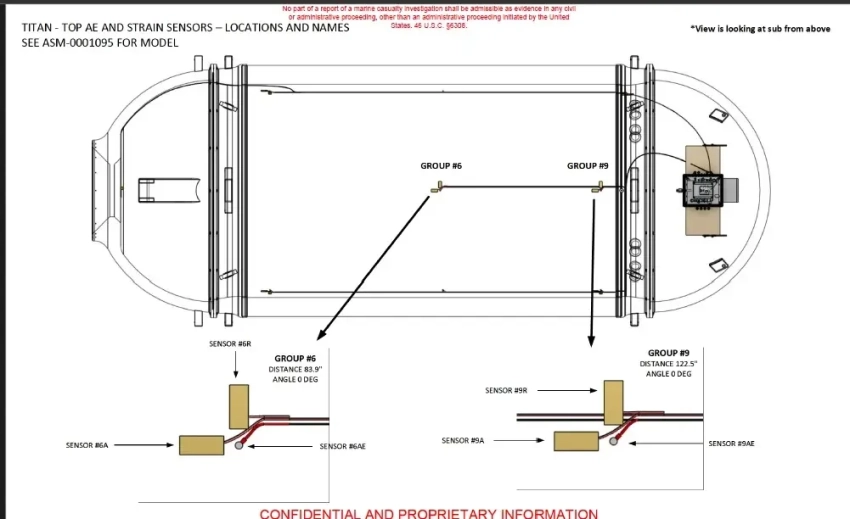
Система RTM была разработана и запатентована одним из членов руководства компании OceanGate Р. С. Рашем и должна была обеспечить пилоту подводного аппарата мониторинг состояния корпуса в режиме реального времени. Она представляла собой набор акустических датчиков и тензодатчиков, размещённых по всему корпусу. Сигналы от датчиков усиливались и преобразовывались в цифровые данные. Этот поток оцифрованных данных акустической эмиссии и деформации корпуса отправлялся на главный компьютер «Титана» для дальнейшей обработки и анализа. Информация о состоянии корпуса отображалась в режиме реального времени в виде столбчатых цветных (зелёный, жёлтый и красный) диаграмм для каждого датчика, сигнализирующих о том, находятся ли показания в пределах допустимых значений.
Пороговые значения были установлены самим Рашем. Зелёный цвет означал, что погружение может продолжаться нормально, жёлтый – погружение можно продолжать с осторожностью, а красный – о необходимости немедленно прервать погружение и вернуться на поверхность.
Серьезным недостатком системы было то обстоятельство, что стеклопластиковая вставка прочного корпуса исключала доступ к датчикам. Это привело к тому, что в момент фатального погружения действовали только 5 из 8 акустических датчиков.
Расположение датчиков системы постоянного контроля состояния корпуса (Real Time Hull Health Monitoring)


Акустический датчик и тензодатчик системы Real Time Hull Health Monitoring


Внешний вид «Титана»
Внутри «Титана»

Пульт управления «Титаном»

Компьютер системы контроля и управления «Титана»

Компьютер системы контроля и управления «Титана» привинчен прямо к углепластиковому прочному корпусу, что снижает его прочность
Информация о «Титане»
Владельцем «Титана» являлась компания CYCLOPS II LLC (Seattle, Washington, USA), он находился в чартере у OceanGate Inc. (Everett, Washington, USA), а его оператором была фирма OceanGate Expeditions (Providence, Bahamas).
Как выяснилось, данный аппарат был построен и эксплуатировался, «не будучи зарегистрированным, сертифицированным, инспектированным или классифицированным какой-либо национальной или международной администрацией флага или общепризнанной организацией».
В соответствии с политикой Береговой охраны США, сертифицированные подводные аппараты — малые пассажирские суда ограничены максимальной глубиной погружения 150 футов (45,7 м), поскольку это считается максимальной глубиной, на которую могут погрузиться аквалангисты для проведения спасательной операции. Однако политика Береговой охраны США не устанавливает никаких ограничений по максимальной рабочей глубине для подводных аппаратов специального назначения.
После многочисленных взаимодействий с различными подразделениями Береговой охраны США Раш понял, что подводные аппараты OceanGate не соответствуют строгим требованиям сертификации малых пассажирских судов Береговой охраны США, что побудило OceanGate переклассифицировать своих пассажиров в «специалистов по миссиям», якобы выполняющих научные задачи, чтобы скрыть свои незаконные пассажирские операции. Однако Раш каких-либо шагов к сертификации «Титана» так и не предпринял. Такой подход OceanGate к соблюдению нормативных требований явился вопиющим пренебрежением к надзору со стороны классификационных обществ, штатов и федеральных органов США.
Пока OceanGate готовилась к своей первой экспедиции к месту крушения «Титаника» в 2018 году, директору по морским операциям было поручено проинспектировать подводный аппарат “Cyclops II”, который позже был переименован в “Titan”. 18 января 2018 года он представил отчет, в котором подчеркивались критические проблемы безопасности. Директор по операциям ясно дал понять, что с передачей подводного аппарата от инженерной группы в группу эксплуатации настало подходящее время для решения проблем безопасности. В своем отчете он перечислил 26 компонентов, требующих корректирующих действий или дальнейшего внимания, выразив обеспокоенность тем, что до тех пор, пока эти проблемы не будут устранены, подводный аппарат не должен использоваться ни в каких предстоящих испытаниях. По мнению директора по морским операциям, он считал важным задокументировать эти выводы и гарантировать, что руководство OceanGate отнесется к ним серьезно, прежде чем подводный аппарат будет введен в эксплуатацию с пребыванием людей на борту.
Реакция руководства последовала незамедлительно. 23 января 2018 года компания OceanGate уволила директора по морским операциям. В письме об увольнении говорилось: «В ходе встречи днём 19 января (Генеральному директору/Секретарю Совета директоров OceanGate Р.С. Рашу) стало ясно, что Вы с ним зашли в тупик по вопросу состояния “Cyclops II” и единственным выходом было Ваше увольнение. Учитывая Вашу квалификацию, мы уверены, что Вы вскоре найдёте другую работу».
Richard Stockton Rush III (1962 –2023) - генеральный директор компании OceanGate и один из ее основателей. Фото 2015 года
В январе 2018 года сборка «Титана» была закончена, и вскоре начались его пробные погружения сначала в водах штата Вашингтон, а затем в районе Багамских островов. Они проводились как без экипажа на борту, так и с экипажем. 12 декабря 2018 года «Титан» с Р. С. Рашем на борту достиг глубины 3939 м.
- Александр Митрофанов
Обсудим?
Смотрите также: